Location
Duplex
à La Tour-de-Salvagny
1 400 € CC /mois
Visite virtuelle
La Tour-de-Salvagny (69890)
A louer centre de La Tour de Salvagny; quartier résidentiel très calme,T4 récent en duplex de 120 m² 3 Chambres plus Bureau, 1SDB 1SDE, spacieux et calme, avec terrasse de 27.20 m².
En plein centre du village de la Tour de Salvagny, commerces, écoles et bus TCL accessibles à pied. Gare TER à 5 minutes en voiture. 20 minutes du centre de Lyon.
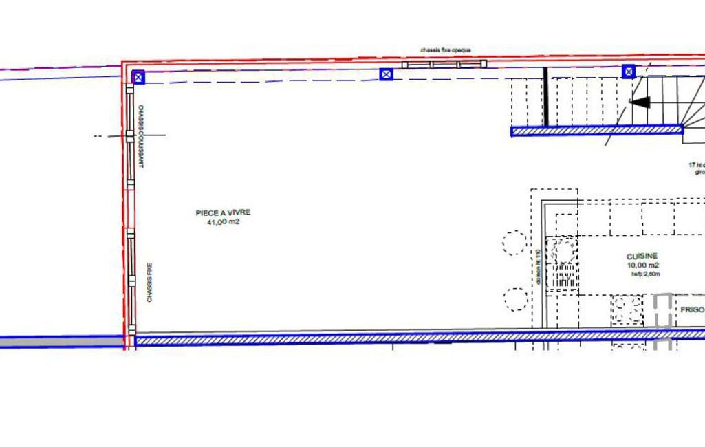
Au rez-de-chaussée, une cuisine ouverte donnant sur 1 séjour et une terrasse , une buanderie et un W-C,
Au premier étage, 3 chambres dont une suite parentale de 15m² avec salle d'eau, 1 bureau, 1 salle de bains , un W-C indépendant,placards.
2 places de parking sécurisées , local à vélo sécurisé
Chauffage électrique par fluide caloporteur, volets électriques,
Loyer : 1360€ + Charges 40 € Dépôt de garantie :1360 € Honoraires charge locataire : 1560€
Les informations sur les risques auxquels ce bien est exposé sont disponibles sur le site Géorisques : www.georisques.gouv.fr
Mandat : 024 Lot 5 1
DPE
Informations complémentaires
-
Descriptif
- Étage du bien : Rez de Chaussée
- Nb. de WC : 2
- Garage
- Nb. de salles de bain : 1
- Nb. de salles d'eau : 1
- Parking
- Terrasse
- Nbre. d'étages : 1
- Nbre. de chambres : 3
- Nb. de pièces : 5
-
Superficies
- Surface habitable : 120 m²
- Surface carrez : 120 m²
- Surface du séjour : 41 m²
- Surface cuisine : 10 m²
- Superficie terrain : 28 m²
- Surface aménageable : 120 m²
-
Conditions
- Charges : 40 €
- Honoraires : 1 560 €
- Dépôt de garantie : 1 360 €
- Règlement des charges : provisionnel
-
Etat
- État general : Bon état
- Année de rénovation : 2010
- Année de construction : 2010
-
Equipement
- Chauffage : individuel Radiateur Electrique
-
Loi ALUR
- Statut du négociateur : Agent immobilier
Contactez nous
Pour plus d'informations sur cette annonce, n'hésitez pas à nous contacter