Bien Vendu
T4
à Lyon 5ème
Nous consulter
Lyon 5ème (69005)
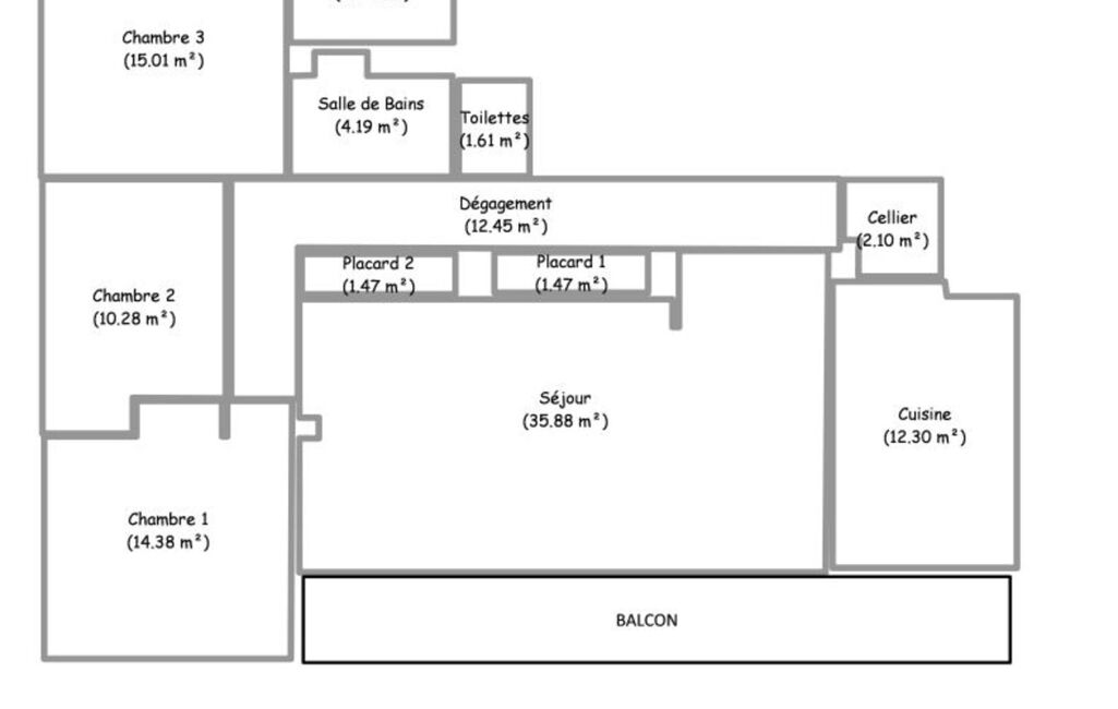
Point du jour à 600m, A vendre, dans une copropriété de standing, bien entretenue, bel appartement familial en étage élevé avec vue dégagée, très lumineux, organisé avec 3 chambres dont une suite, salon, séjour sur balcon, cuisine équipée indépendante avec cellier. En annexe une place de parking et une cave.
Charges annuelles courantes: 4.200 euros (eau froide, eau chaude, chauffage, espaces verts et gardien inclus)
Proximité tous commerces et transports à pied et à 500m des Minimes.
« Les informations sur les risques auxquels ce bien est exposé sont disponibles sur le site Géorisques : www.georisques.gouv.fr ».
Mandat : 3592
DPE
Coût énergétique minimum :
1370 €
Coût énergétique maximum :
1900 €
Année de référence consommation :
12/12/2022
Informations complémentaires
-
Descriptif
- Cave
- Étage du bien : 6eme
- Nb. de WC : 2
- Balcon
- Nb. de salles de bain : 1
- Nb. de salles d'eau : 1
- Gardien
- Parking
- Ascenseur
- Nbre. d'étages : 7
- Nbre. de chambres : 3
- Nb. de pièces : 4
-
Superficies
- Surface habitable : 116 m²
- Surface du balcon : 15 m²
- Surface du séjour : 36 m²
- Surface cuisine : 12 m²
-
Etat
- État general : Bon état
- Année de rénovation : 2010
- Année de construction : 1970
-
Equipement
- Chauffage : collectif Radiateur Gaz
-
Environnement
- Orientation : SE
-
Loi ALUR
- Statut du négociateur : Salarié
-
Conditions
- Honoraires à charge de : vendeur
Contactez nous
Pour plus d'informations sur cette annonce, n'hésitez pas à nous contacter
Tel. :
Annonce 2 /
61